





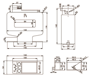
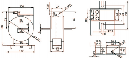
该产品主要用于供电局计量,与供电局收费电表配合使用,产品一次接线采用直接式,二次电流信号及一次电压信号接线用透明接线罩罩好后铅封,以防止窃电。供电局电能计量回路。具体型号:LQZJ4-0.66/30 ...
立即咨询该产品主要用于供电局计量,与供电局收费电表配合使用,产品一次接线采用直接式,二次电流信号及一次电压信号接线用透明接线罩罩好后铅封,以防止窃电。
供电局电能计量回路。
具体型号:LQZJ4-0.66/30 300A/5A
技术要求:额定电流比300A/5A;准确级0.2S级;额定负荷10VA。
通讯协议:无
辅助电源:无
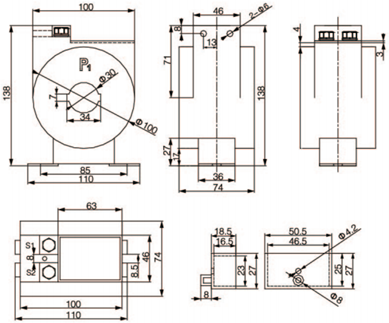
该系列产品与供电系统收费电能表配合使用,产品采用环氧浇注绝缘,二次接线端子采用透明接线罩罩好后铅封,以防止窃电,产品准确级为0.2S和0.5S,产品性能完全满足国家电网公司企业标准Q/GDW572-2010要求。
供电系统计量
具体型号:AKH-0.66/ZD1 200A/5A
技术要求:额定电流比200A/5A;准确级0.2S级;额定负荷10VA。
通讯协议:无
辅助电源:无
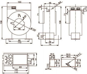
该系列产品与测量仪表和其他测控装置配套使用,产品采用环氧浇注绝缘,二次接线端子采用透明接线罩罩好后铅封,以防止窃电,产品准确级可达0.2S,产品等效于LMZ-0.5和LMZJ-0.66,性能完全满足国家标准GB1206-2006等效IEC60044-1:2003要求。
低压配电系统测量、计量用
具体型号:AKH-0.66/J-30I 150A/5A
技术要求:额定电流比150A/5A;准确级1级;额定负荷2.5VA;穿心匝数1匝。
通讯协议:无
辅助电源:无
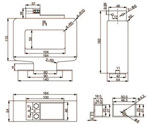
容量大,防护等级为IP65,适用于变压器低压测量,保护等级可达10P20,能够有效的对电动机进行短路或过载保护。方形孔型,可穿越铜排,一般配继电保护使用,可与ARD3T电动机保护器单元、ALP线路保护配套使用,也可以与ABB的SPAJ140C继电器配合使用。
变压器低压测量
具体型号:AKH-0.66/H-220x165 6000A/5A
技术要求:额定电流比6000A/5A;准确级10P15;额定负荷30VA;穿心匝数1匝。
通讯协议:无
辅助电源:无